1 изображение

Молочный завод Молоконт 20000

Ростов-на-Дону
23.04.2024, 19:08
Полная стоимость
7 000 000 Р
Прибыль
по запросу
Окупаемость
Возраст бизнеса
3-5 лет
АлтераИнвест
 
 
Информация о бизнесе


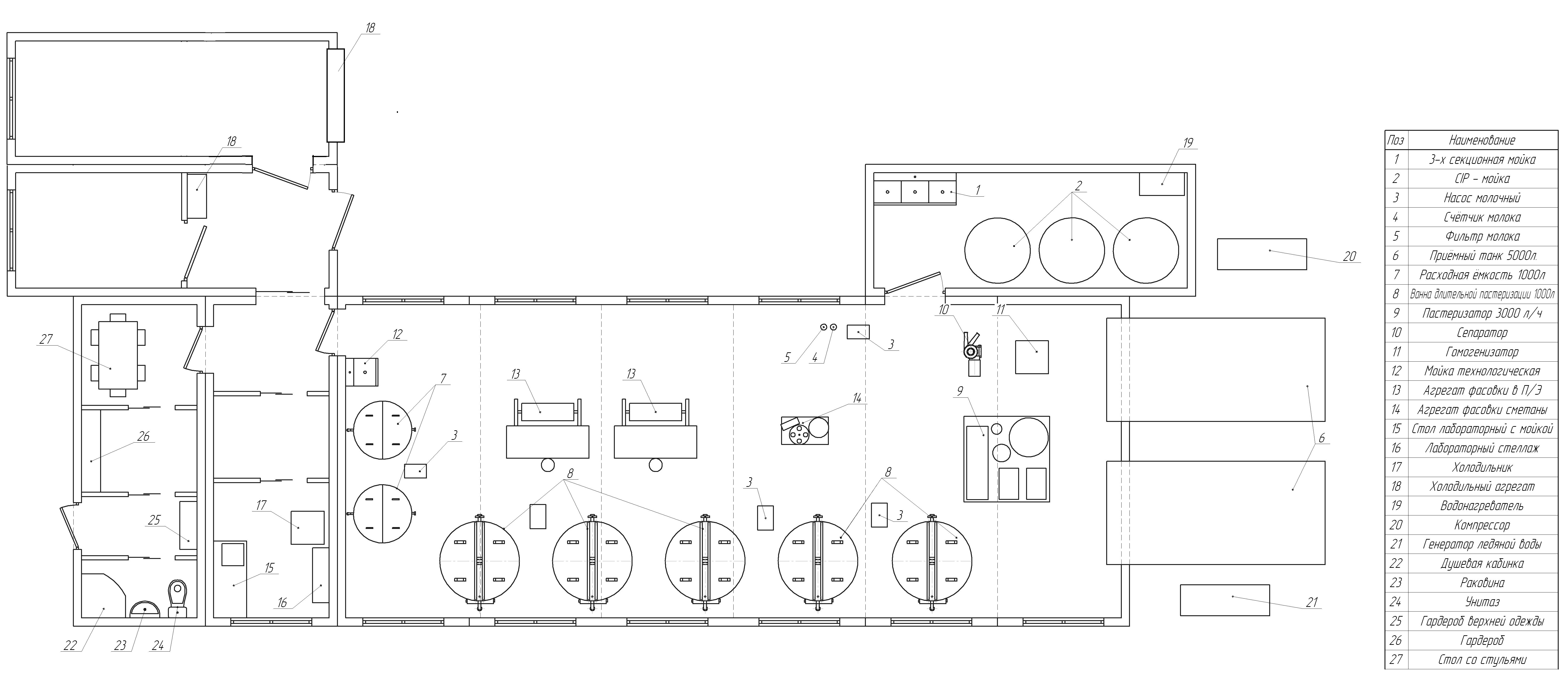
Модульный завод переработки молока 2014 г.в.



Место нахождения: г. Городовиковск, 100 км от Ставрополя, 200 км от Ростова-на-Дону.

Конструкция завода позволяет демонтировать всё до фундамента (от полов до крыши) за несколько дней и собрать на новом месте. Всё перевозится на 7 (семи) фурах.



Технические характеристики:

Исходное сырье-молоко натуральное коровье

Объем перерабатываемого молока: до 20000 кг/сутки (двухразовая загрузка)



Ассортимент выпускаемой продукции:

- молоко питьевое пастеризованное 

- напитки кисломолочные

- сметана

- творог


- Фасовка в п/э пакеты – до 3000пакетов/час

- Фасовка в стаканы – до 600 стаканов/час

- Установленная мощность, кВт – 170 кВт; напряжение – 380/220 В

- Расход воды 2,0 м3 в сутки на санобработку; 

- Количество обслуживающего персонала – 5чел.

- Площадь застройки – 250 м².

Местоположение
Город
Ростов-на-Дону
Дополнительно
Возраст бизнеса
3-5 лет
Похожие объявления