1 изображение

Молочный завод Молоконт 20000

Ростов-на-Дону
09.06.2018, 14:48
Полная стоимость
7 000 000 Р
Прибыль
по запросу
Окупаемость
Возраст бизнеса
3-5 лет
Вячеслав Щеголев
589бизнес брок компании АлтераИнвест
 
Информация о бизнесе


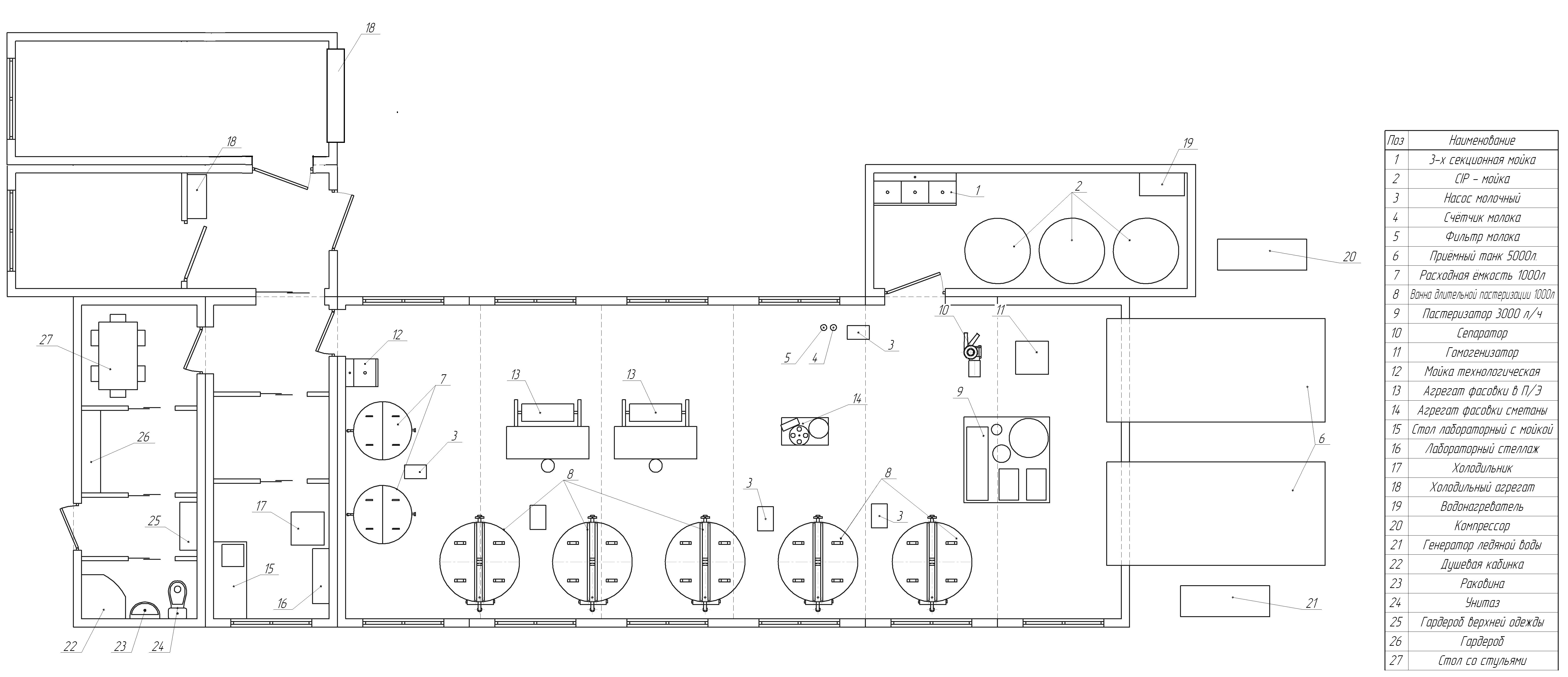
Модульный завод переработки молока 2014 г.в.
Место нахождения: г. Городовиковск, 100 км от Ставрополя, 200 км от Ростова-на-Дону.
Конструкция завода позволяет демонтировать всё до фундамента (от полов до крыши) за несколько дней и собрать на новом месте. Всё перевозится на 7 (семи) фурах.
Технические характеристики:
Исходное сырье-молоко натуральное коровье
Объем перерабатываемого молока: до 20000 кг/сутки (двухразовая загрузка)
Ассортимент выпускаемой продукции:
- молоко питьевое пастеризованное 
- напитки кисломолочные
- сметана
- творог
- Фасовка в п/э пакеты – до 3000пакетов/час
- Фасовка в стаканы – до 600 стаканов/час
- Установленная мощность, кВт – 170 кВт; напряжение – 380/220 В
- Расход воды 2,0 м3 в сутки на санобработку; 
- Количество обслуживающего персонала – 5чел.
- Площадь застройки – 250 м².

Местоположение
Город
Ростов-на-Дону
Дополнительно
Возраст бизнеса
3-5 лет
Похожие объявления